ROSE
WOHNEIGENTUM GMBH
Wir über uns
Aktuelle Bauobjekte:
Steelerstraße
Lageplan
Grundrisse
Ansichten
Erdgeschoss
Obergeschoss
Dachgeschoss
Baubeschreibung
Preise
Finanzierungskosten
Reihenmittelhaus
Reihenendhaus
Sudholzstraße
Referenzbilder
Dienstleistungen
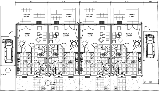
Aktuelles Bauobjekt - Steeler Straße -
Grundrisse - Erdgeschoss
Vergrößerte Ansicht aller vier Häuser
Vergrößerte Ansicht eines Hauses
(Nr.75)
Bauunternehmung Rose
Rose Wohneigentum
Kontakt
Impressum
Engergiewerthaus
Aktuelle Termine
Startseite